傳力接頭系列
名稱:VSSJAFC型可拆式雙法蘭傳力接頭
VSSJAFC型可拆式雙法蘭傳力接頭連接方式:法蘭式,
VSSJAFC型可拆式雙法蘭傳力接頭工作壓力:0.6-1.6MPA
VSSJAFC型可拆式雙法蘭傳力接頭公稱通經:65-3200mm
VSSJAFC型可拆式雙法蘭傳力接頭使用介質:水、污水
VSSJAFC型可拆式雙法蘭傳力接頭使用溫度:常溫
VSSJAFC型可拆式雙法蘭傳力接頭密封材料:NBR,
VSSJAFC型可拆式雙法蘭傳力接頭制造標準:GB/T12465-2007
VSSJAFC型可拆式雙法蘭傳力接頭
性能特點:
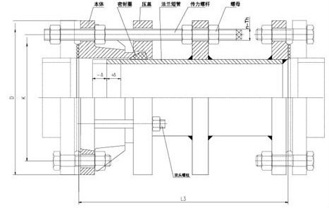
松套傳力接頭是在法蘭松套補償接頭的基礎上增設法蘭短管及傳力螺桿而成,次類型的補償接頭與松套補償接頭和松套限位補償接頭不同的是它的補償量是指在安裝及拆卸過程中的調節量,一旦將所有的螺母擰緊,它是剛性連接的,可以傳遞軸心力,從而保護閥門、泵等設備。
VSSJAFC型可拆式雙法蘭傳力接頭是有松套伸縮接頭和短管法蘭、傳力螺桿等構件組成,它能傳遞被連接件的壓力推力(盲板力)和補償管路誤差,不能吸收軸向位移。重要用于泵、閥門、管路等附件的松套連接。
適用范圍
VSSJAFC型可拆式雙法蘭傳力接頭適用于輸送海水、淡水、冷熱水、飲用水、生活污水、原油、燃油、潤滑油、成品油、空氣、煤氣、溫度不高于250度的蒸汽和顆粒粉狀等介質。
安裝簡要說明:
VSSJAFC型可拆式雙法蘭傳力接頭適用于兩邊均與法蘭連接的管路中,安裝時調節產品兩端與法蘭的安裝長度,對角依次均勻擰緊壓蓋螺栓,使其成為一個整體,并有一定的位移量,方便安裝維修時,根據現場尺寸進行調整。在工作時可以把軸向推力傳遞至正個管道。

PN0.6MPa的可拆式雙法蘭傳力接頭的基本尺寸
公稱通經
DN管子外徑
Dw接尺寸
總長
L安裝尺寸L1
伸縮量
重量/kg
法蘭外徑
D螺栓孔中心
圓直徑D1螺栓孔
n/個
do
min
max
65
76
160
130
4
14
450
420
180
40
17.9
80
89
190
150
18
460
20.6
100
114
210
170
28.4
125
140
240
200
8
18
37.1
150
168
265
225
46.2
200
219
320
280
57.4
250
273
375
335
12
76.3
300
325
440
395
22
485
445
395
50
94.6
350
377
490
445
122.7
400
426
540
495
16
141.1
450
480
595
550
158.1
500
530
645
600
20
186.2
600
630
755
705
26
500
465
415
261.9
700
720
860
810
24
324.5
800
820
975
920
30
680
630
570
60
516.7
900
920
1075
1020
570.3
1000
1020
1175
1120
28
658.8
1200
1220
1405
1340
32
33
750
680
620
984.4
1400
1420
1630
1560
36
36
1273.1
1600
1620
1830
1760
40
770
700
640
1767.2
1800
1820
2045
1970
44
39
1981.7
2000
2020
2265
2180
48
42
830
730
670
2483.4
2200
2220
2475
2390
52
860
760
700
3086.3
2400
2420
2685
2600
56
3456.4
2600
2620
2905
2810
60
48
1000
880
800
80
3844.3
2800
2820
3115
3020
64
4307.8
3000
3020
3315
3220
68
4738.1
3200
3220
3525
3430
72
5134.7
PN1.0MPa的可拆式雙法蘭傳力接頭的基本尺寸
| 公稱通經 DN |
管子外徑 Dw |
法蘭連接尺寸 | 總長 L |
安裝尺寸L1 | 伸縮量 | 重量/kg | ||||
| 法蘭外徑D | 螺栓孔中心 圓直徑D1 |
螺栓孔 | ||||||||
| n/個 | do | min | max | |||||||
| 65 | 76 | 185 | 145 | 4 | 18 | 460 | 420 | 380 | 40 | 19.9 |
| 80 | 89 | 200 | 160 | 8 | 22.9 | |||||
| 100 | 114 | 220 | 180 | 31.6 | ||||||
| 125 | 140 | 250 | 21O | 41.2 | ||||||
| 150 | 168 | 285 | 240 | 22 | 51.2 | |||||
| 200 | 219 | 340 | 295 | 63.8 | ||||||
| 250 | 273 | 395 | 350 | 12 | 84.8 | |||||
| 300 | 325 | 445 | 400 | 485 | 445 | 395 | 50 | 105.1 | ||
| 350 | 377 | 505 | 460 | 136.3 | ||||||
| 400 | 426 | 565 | 515 | 16 | 26 | 495 | 157.3 | |||
| 450 | 480 | 615 | 565 | 175.7 | ||||||
| 500 | 530 | 670 | 620 | 20 | 206.9 | |||||
| 600 | 630 | 780 | 725 | 30 | 510 | 465 | 415 | 291.1 | ||
| 700 | 720 | 895 | 840 | 24 | 361.1 | |||||
| 800 | 820 | 1015 | 950 | 33 | 690 | 630 | 570 | 60 | 574.2 | |
| 900 | 920 | 1115 | 1050 | 28 | 633.7 | |||||
| 1000 | 1020 | 1230 | 1160 | 36 | 732.2 | |||||
| 1200 | 1220 | 1455 | 1380 | 32 | 39 | 740 | 680 | 620 | 1036.2 | |
| 1400 | 1420 | 1675 | 1590 | 36 | 42 | 1340.9 | ||||
| 1600 | 1620 | 1915 | 1820 | 40 | 48 | 800 | 700 | 640 | 1860.0 | |
| 1800 | 1820 | 2115 | 2020 | 44 | 2086.1 | |||||
| 2000 | 2020 | 2325 | 2230 | 48 | 840 | 730 | 670 | 2614.3 | ||
| 2200 | 2220 | 2550 | 2440 | 52 | 56 | 880 | 760 | 700 | 3249.2 | |
| 2400 | 2420 | 2760 | 2650 | 56 | 3638.3 | |||||
| 2600 | 2620 | 2960 | 2850 | 60 | 1030 | 880 | 800 | 80 | 4046.7 | |
| 2800 | 2820 | 3180 | 3070 | 64 | 4534.6 | |||||
| 3000 | 3020 | 3405 | 3290 | 68 | 60 | 4987.4 | ||||
上一篇:【VSSJAF型雙法蘭傳力接頭】
下一篇:【C2F/VSSJAF型雙法蘭傳力接頭】
關鍵字:橡膠接頭、防水套管、傳力接頭、伸縮接頭、橡膠止回閥、波紋補償器
鞏義市昌旺給排水材料廠 版權所有 地 址:河南省洛陽市西工區唐宮西路44號置隆花園10樓2單元1801室 管理入口
豫ICP備16036159號-4
電 話:15037198065 (微信同號) Q Q:2914005008
郵 箱:[email protected] 2914005008(在線洽談)
